Location gite "Les Glycines" en Vendée

 

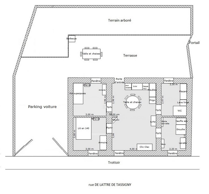
Le plan de notre location gite en Vendée

 

 

Aménagement extérieur de votre gite en Vendée

 

● Entièrement clos

 

 ● 1 parking voiture

 

● 1 terrasse ombragée, table, chaises, barbecue

 

● 1 terrain arboré 

 

 

Aménagement Intérieur de votre location,

 

maison entièrement rénové comprenant :

 

 

● 1cuisine ouverte aménagée avec lave vaisselle, plaque de cuisson, four, micro ondes, frigo etc.

 

● Salon TV, canapé clic clac et buffet

 

● 1 chambre parent avec un lit en 140 et armoire

 

● 1 chambre enfants avec lits superposés et armoire

 

● 1 salle d'eau avec évier, douche, sèche serviette et banc

 

● 1 buanderie avec lave linge et placard

 

● 1 WC indépendant

 

© 2016 Around . All Rights Reserved locations-gite-vendee.fr. Design by W3layouts